SHAUS 3D Engineering Solutions
HomeServicesProductsProjects

Here are examples of our latest projects.
Aviation trade show display
Boeing 747 engine cowling booth
Boeing 747 engine cowling booth
Touchscreen coffee table
Touchscreen kiosk with keypad
Touchscreen kiosk with keypad
Touchscreen kiosk with keypad
Custom steel and wood stairs to preexisting landings with glass handrail
Custom steel and wood stairs to preexisting landings with glass handrail
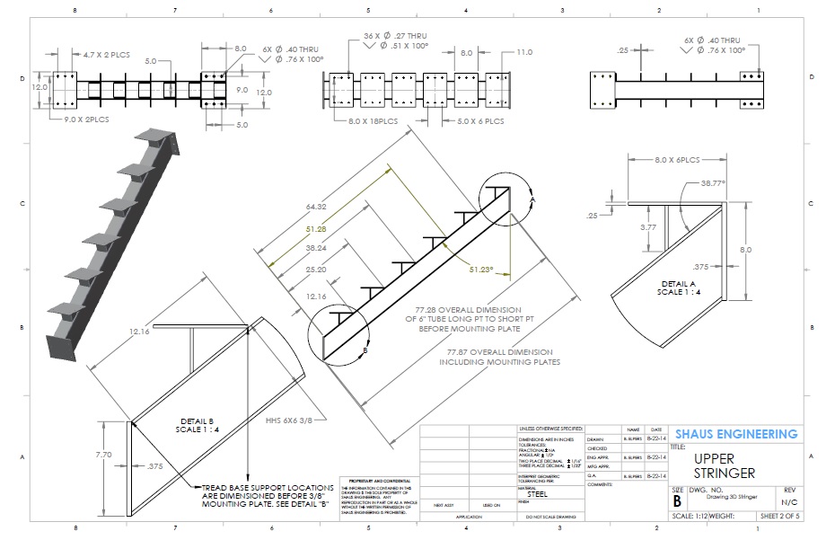
Detailed drawing example of the custom steel and wood stairs to preexisting landings
Detailed drawing example of the custom steel and wood stairs to preexisting landings
Code evaluation measurement displaying tread gap less than 4 inches 
Loading Dock and Handrail
Evaluation measurement displaying corner handrail gap less than 3 inch requirement 
Drawing example of handrail layout
Drawing example of handrail details
Drawing 8 inch curb and gutter example for the city of Evansville 
Drawing 8 inch curb and gutter example for the city of Evansville 
Mezzanine cargo elevator  
Mezzanine cargo elevator  
Animation of mezzanine cargo elevator  
Animation of mezzanine cargo elevator  
Animation of mezzanine cargo elevator  
Mobile workstation
Hose House No. 10 rehabilitation aka Shaus
Calculations
Finite Element Analysis Simulation of IMG Ring - Study on Deformation, Displacement, Factor of Safety, and Von Mises Stress